



设备材质 Materials of construction:
|
构件 Component |
壳体 Body |
滤网 Screen Mesh |
排污堵头 Drainage nozzle |
密封件 Gasket |
螺栓/螺母 Bolt/Nut |
|
材质 Material |
CS SS H62 CS衬PTFE |
304 316L PTFE |
CS 304 316L PTFE |
金属缠绕 PTFE |
304 316L |
注:连接标准:HG 、GB、 ANSI、 JIS、 DIN等等.
Standard Connection:HG、GB、ANSI、JIS、DIN、ect.
操作压力:0.6MPa——5.0MPa (150Lb——600Lb)
Operating Pressure:0.6MPa——5.0MPa (150Lb——600Lb)
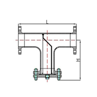
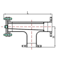
尺寸表 Dimension table:
|
DN |
L |
H |
H1 |
|
|
50 |
2” |
278 |
166 |
306 |
|
65 |
21/2” |
314 |
187 |
348 |
|
80 |
3” |
342 |
205 |
384 |
|
100 |
4” |
418 |
246 |
473 |
|
125 |
5” |
460 |
270 |
529 |
|
150 |
6” |
500 |
292 |
581 |
|
200 |
8” |
588 |
340 |
694 |
|
250 |
10” |
690 |
398 |
821 |
|
300 |
12” |
792 |
452 |
949 |
|
350 |
14” |
852 |
485 |
1023 |
|
400 |
16” |
970 |
547 |
1166 |
|
500 |
20” |
1148 |
642 |
1372 |